RACQ End of travel facility, 60 Edward St, Brisbane QLD 4006

– Location: Brisbane City, Edward St
– Completed: 2025
– Client: Sentinel Group
– Designer: Curious Us
– Builder: Renascent
– Services Provided: Custom Made architectural linear light design, fabrication, supply.

Project Overview

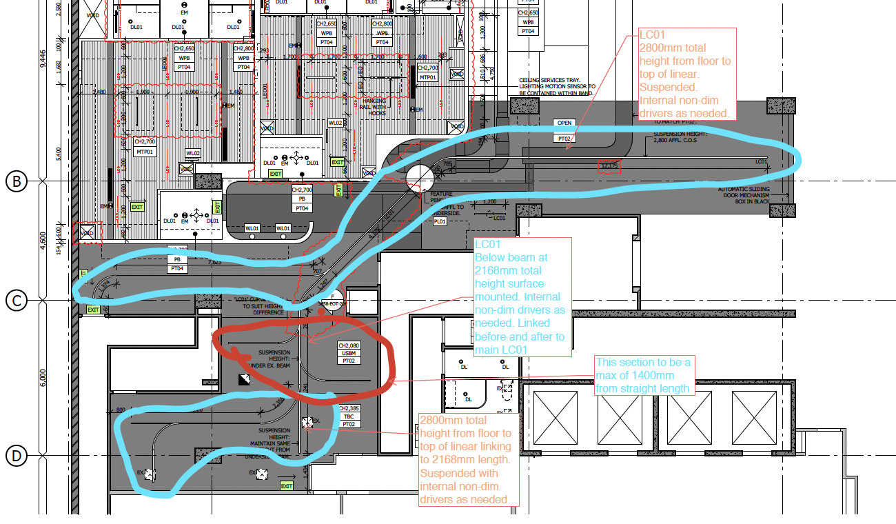
We were invited to supply custom architectural linear lighting for RACQ’s new end-of-travel facility in the heart of Brisbane City. The design vision from the architects and clients was to create a sense of organic flow through the space — no sharp angles, only smooth curves guiding movement. Our lighting needed to do more than just illuminate — it had to act as wayfinding for users storing their bikes and moving through the facility.

The Lighting Solution

We put in an enormous amount of effort and collaboration to bring the design vision to life.
• Plan Review & Lux Calculations: We reviewed all architectural drawings and performed detailed lux calculations, aiming for a consistent 500 lux across the space.
• Design Feedback: We provided the designers with lighting layout feedback, highlighting areas for improvement and suggesting additional branches for optimal light distribution.
• Custom Solutions: Adjusted measurements and positioning of the Airlume profiles to allow for precise vertical dropdowns.
• On-Site Collaboration: We conducted multiple site visits, meeting with contractors to ensure every detail was understood and correctly implemented.
• Custom Fabrication & Documentation: Produced tailored installation instructions, complete with labelled connection diagrams, step-by-step photo guides, and photographed packing lists to help installers locate every item easily.

Products Used

  • Airlume 3D: Modular linear lighting system used to create the custom spiderweb layout
  • GLOPRO Neon Light 1010:The GloPro Neon Light 1010 is a high-quality, flexible, and energy-efficient lighting solution perfect for both indoor and outdoor applications with a IP67 grade
  • 1607 Profile: Compatible with strips up to 10mm wide, offering versatile lighting options and a nice finish 
  • Dotfree 8mm strip: This premium LED strip light boasts the brightest and most uniform dot-free effect, thanks to the highest quantity of chips per meter available on the market. It’s extremely flexible, durable, and reliable, with high lumen output and easy installation.

Results and Impact

Thanks to meticulous preparation and teamwork, the entire installation was completed in just a day and a half — remarkably quick for such a detailed custom project. The result is a fluid, modern space where lighting not only enhances the architecture but also serves a practical, intuitive purpose. Every light curve, every transition, and every joint reflects our craftsmanship, problem-solving, and dedication to design integrity. This project stands as a great example of what’s possible when creativity, precision engineering, and collaboration come together.

Testimonial

“It was our first time working with Lightcore, and we were unsure about the custom products and worried they had underquoted the installation costs. But they overdelivered – everything was straightforward, and the result looks amazing. We’re excited to work with them again.”

Adam Pollard, Project Manager, Renascent

★★★★★

Tell us about your project and
we'll tell you how to light it

Coming Soon.

Exciting things are on the horizon.
Explore our products and get in touch with us to stay in the loop.